弥勒信息港
业务电话:191-
8734
-
13
15、187-
2500
-
29
44 周一至周五
早8:00~晚6:00
免费发布信息
·
弥勒
[切换]
首页
租房售房
生活服务
招聘信息
征婚交友
同城活动
商务服务
教育培训
二手市场
宠物
车辆服务
供求信息
本地资讯
弥勒红河信息港
>
弥勒房产租售
>
弥勒售房
红河弥勒湖泉湾1号 1室1厅二手房出售,报价:28万元
2025-02-21 07:14:18发布,
已过期
,15浏览
收藏
举报
|
定时刷新
|
置顶本条信息
|
4图
查看更多图片
图片由用户自行上传,本网站无法鉴别所上传图片版权,如涉及侵权请通知,本网站将及时处理。
价格:
28万元
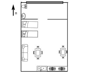
房型:
1室1厅
面积:
51平米
装修:
中等装修
楼层:
中层(共32层)楼
产权年限:
70年
身份:
中介
区域:
弥勒
地址:
红河-弥勒-湖泉湾1号
信息
已过期
,已屏蔽联系方式。点我查看
更多弥勒售房信息
。
如果您是手机号
的主人,请用该手机号登录
刷新信息
,可恢复显示。
信息详情
【
站长推荐:下载红河信息港APP,把网站装进口袋
】
产权性质:商品房住宅 物业类型:普通住宅
产权年限:70年产权 房本年限:满二年
唯一住房:是
参考预算:首付4万,月供1055元
湖景房,临湖而居,出门即是湖泉生态园,楼下超市,车站,小吃街。房屋布局合理,南北通透,采光通风,配套设施完善,产权70年,房子下面有公交车站和大型商场。
联系我时,请说是在红河信息港看到的,谢谢!
首发网址:https://mile.hhxxg.com/shoufang/69701.html
查看全部弥勒售房信息
发布一条弥勒售房信息
相关图片
您可能感兴趣
[售房]
缙颐云间阙府小区房屋出售,蒙自缙颐云间阙府,3室2厅,报价:78.6万元
[4图]
09-08
[售房]
蒙自天佑璟玥,3室2厅二手房出售,报价:71.6万元
[4图]
09-08
[售房]
七彩滇南第壹城小区房屋出售,蒙自七彩滇南第壹城,3室2厅,报价:53.6万元
[4图]
09-07
弥勒新发布
[售房]
「红河」弥勒东南亚生态园温泉里,2室2厅二手房出售,报价:48.6万元
[4图]
09-05
[售房]
东南亚生态园温泉里小区房屋出售,弥勒东南亚生态园温泉里,3室2厅,报价:48万元
[4图]
09-05
[售房]
「红河」弥勒温泉小区,3室2厅二手房出售,报价:38.6万元
[4图]
09-05
[售房]
#东南亚生态园温泉里小区二手房#弥勒东南亚生态园温泉里,3室2厅二手房,报价:66.8万元
[4图]
08-29
[资讯热点]
腾冲保山文体培训-保山声乐艺术指导
[图]
11-13
上一篇:
弥勒红河云岭盛世佳园,2室2厅二手房出售,报价:40.8万
下一篇:
红河弥勒万象城市领地 1室1厅二手房出售,报价:28.8万
发布人档案
fc1393
用户级别:
免费会员
信用等级:
实名认证:
附近城市售房
蒙自售房
个旧售房
开远售房
弥勒售房
建水售房
石屏售房
绿春售房
屏边售房
元阳售房
金平售房
红河县售房
泸西售房
河口售房
相关类目
弥勒租房
弥勒售房
弥勒楼盘
弥勒商铺转让/出租
弥勒商铺出售
弥勒写字楼出租
弥勒写字楼出售
弥勒厂房/仓库出售
弥勒厂房/仓库出租
弥勒车位出售
弥勒车位出租
弥勒求租/求购
附近区县
城区信息网
周边信息网